Ei hytte som gir merksemda vidare

Sangefjellvegen 123 vart reist i 1974, med ein idé som framleis står seg: Hytta skal ikkje ta plass, ho skal gi plass. Til lyset. Til terrenget. Til utsikta, og til dei små opplevingane som gjer fjellet unikt.

Du merkar det i måten tunet ligg på. I tuntreet som får stå. I snøfokken som får teikne i lufta utanfor vindauget. I ved som tørkar ved veggen, og i stilla som kjem tilbake når døra går att.

Dette er ei hytte som har vore brukt. Levd i. Som ei ramme for livet. Ungar som kjem inn raude i kinna. Våte vottar i gangen. Kaffiringar på bordet, og ein samtale som varer litt lenger fordi det er rom for han.

Gjennom 2025 vart hyttetunet klargjort for dagens krav, utan å miste seg sjølv. Målet har vore å gjere det lunare, tryggare og meir praktisk, men tru mot det som gjer ei Ålhytte til ei Ålhytte: Varig arkitektur som tåler livet, og som kan følgje nye behov utan å bli noko anna enn det ho er.

Velkomen til ei Ålhytte med ro i uttrykket og varme i veggane.

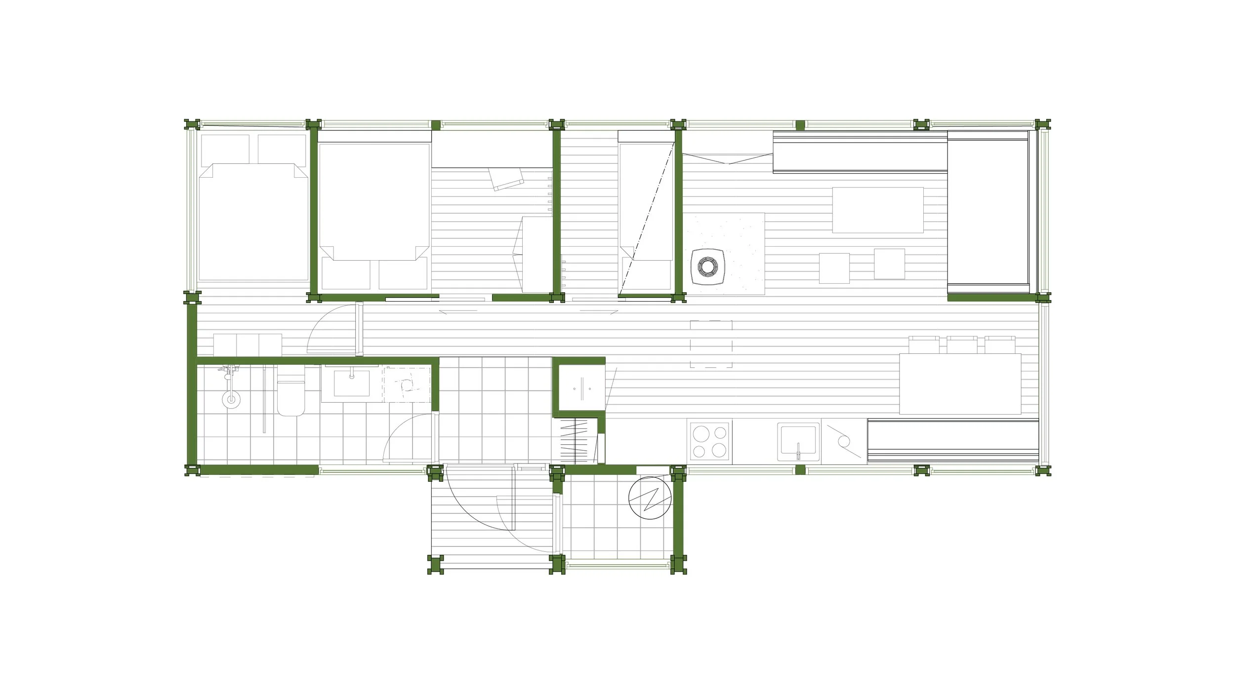
Les meir om oppgraderinga Sjå planteikning

Oppgradert og kvalitetssikra av Ålhytta

Sangefjellvegen 123 er rehabilitert med eit klart mål: Å ta vare på det essensielle i ei eldre Ålhytte, og samstundes løfte tunet til ein standard som fungerer i dag. Vi har tilbakeført og forsterka den opprinnelege Ålhytte-arkitekturen, retta opp tekniske manglar og forbetra funksjon, utan å byggje på.

Tilnærminga har vore den same som alltid: Byggje smart, ikkje stort. Det betyr å velje løysingar som varer, og å velje bort det som tek plass utan å gi meir liv.

Dette er gjort (utval):
  • Uoriginale tilbygg fjerna
  • Nytt fundament, etterisolering og ytterkledning
  • Oppgradert elektrisk anlegg
  • Lagt inn vatn og avløp
  • Nye vindauge
  • Moderne, reintbrennande peisomn og nytt pipeløp
  • Forbetra planløysing
  • Komplett Ålhytteinteriør
  • Nytt overbygd inngangsparti
  • Nytt tak

Kom og kjenn det sjølv

Nokre stader må du kome til for å skjøne. Sangefjellvegen 123 handlar ikkje berre om kvadratmeter, men om kjensla når hytta ligg lågmælt i terrenget og naturen får spele hovudrolla.

Her får du eit ferdig hyttetun som er tatt vare på med respekt for det opphavlege, og gjort klart for nye kapittel.

Ønskjer du å bli betre kjend med Sangefjellvegen? Hytta kan prøvebuast, og her kan du kjenne på romkjensla, funksjonaliteten og oppleve kvalitetane etter den varsame rehabiliteringa.

Prøvebu hytta