
Prøvebo Ålhytte på RUPEMYR i Eggedal – Sigdal kommune
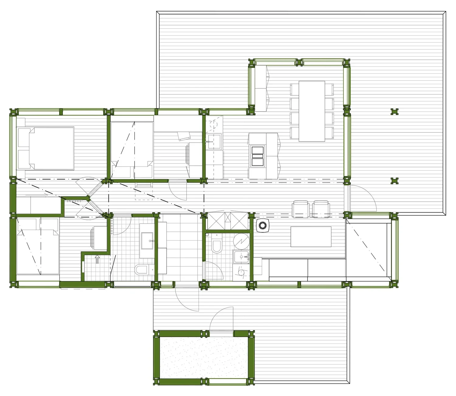
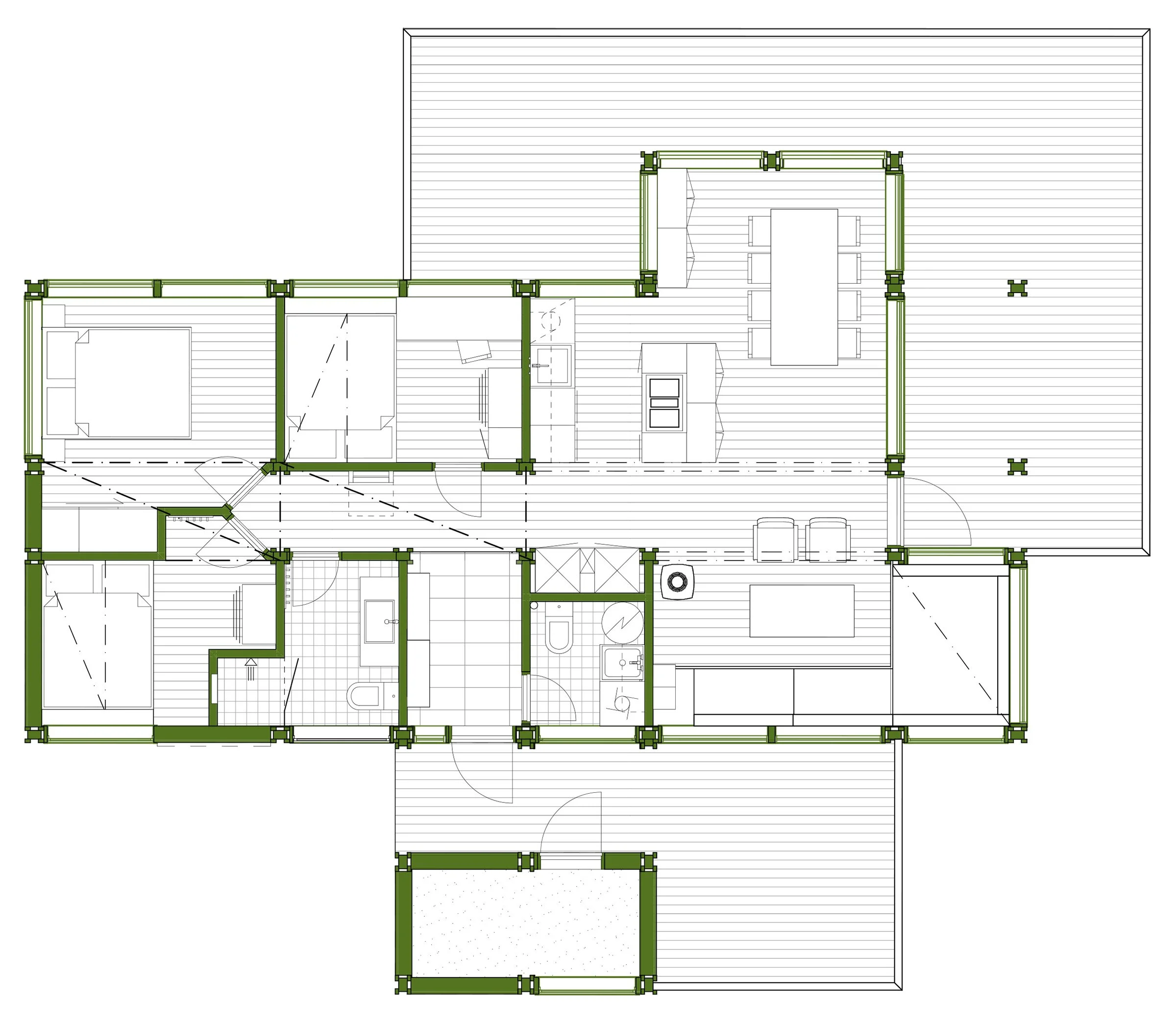
Ålhytta D40X - BYA 110,5m2 - tomt 4:
Prøvebohytta på Rupemyr er på 110,5 kvm (BYA). Hytta inneholder 3 soverom med til sammen 7 sengeplasser.
For øvrig bad med toalett og dusj, samt vaskerom/teknisk rom med toalett. Kjøkken med spiseplass, stue med sofabenk, dagseng i to etasjer og peisovn. Hytta har utvendig bod.
I ytterkanten av Tempelseter, øverst i dalsiden ovenfor Eggedal, finner du Rupemyr-hytteområde. Tomtene ligger solrikt til med panoramautsikt, med Gaustatoppen og Knuten på Kongsberg i det fjerne.
Rupemyr-hytteområdet er et godt utgangspunkt for den friluftinteresserte med umiddelbar nærhet til fantastisk turterreng. Det er en rekke flotte toppturer man kan gå ved å følge flere av stiene i området, Høgevarde, Gråfjell og Drotninggsgutunatten. Skiløypene ved hyttefeltet strekker seg mot Norefjell, Høgevarde og Haglebu, en stopp for gode vafler på «Fiskeløysingen» midt inne i fjellet er også et turmål for mange. Eller en fisketur i de krystallklare fjellvannene, er man riktig heldig kan man støte på en flokk villrein.
Ønsker du å prøvebo denne Ålhytta, fyll ut skjemaet under og du vil bli kontaktet.