
Prøvebo vår Ålhytte på Sangefjell, Ål
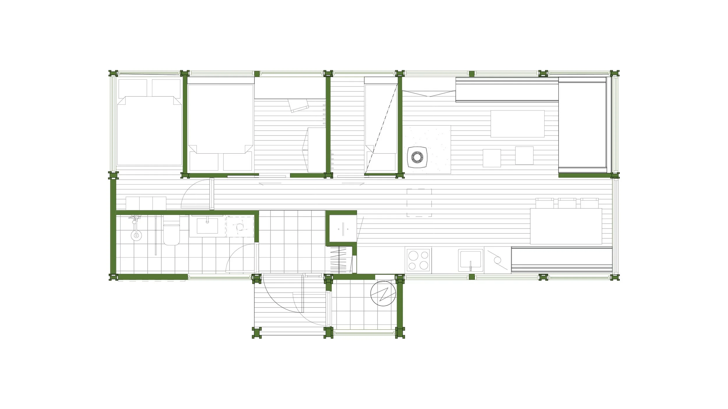
Hytta har tre soverom med totalt seks sengeplasser, i tillegg til muligheter for overnatting på dagseng i stuen. Videre inneholder hytta bad med WC og dusjnisje, åpen kjøkkenløsning med spiseplass, samt en hyggelig stue med sofakrok, karnapp og peisovn. Hytta har også utvendig bod for oppbevaring av ski, turutstyr og ved.
Prøvebohytta ligger på Sangefjell, omtrent 13 km fra nærmeste tettsted.
Et «ta vare på»-prosjekt
Hytta er rehabilitert med et ønske om å bevare det essensielle i en eldre Ålhytte. Vi har tilbakeført og forsterket det opprinnelige Ålhytte-designet, samtidig som vi har rettet opp i tekniske mangler og lite funksjonelle romløsninger. Tilnærmingen har vært å «bygge smart, ikke stort» – vi har fokusert på effektive og gode løsninger uten unødvendige påbygg eller økt fotavtrykk.
Om rehabiliteringen
I prosessen er uoriginale tilbygg fjernet, og hytta har fått nytt fundament, etterisolering og ny ytterkledning. Endevegg og inngangsparti er tilpasset for en bedre planløsning uten at hyttas karakter er endret.
Viktige oppgraderinger inkluderer:
Innlagt vann og avløp med eget renseanlegg.
Nye vinduer og oppgradert elektrisk anlegg.
Moderne, rentbrennende peisovn og nytt pipeløp.
Interiør basert på Ålhytte-tradisjonen, med elementer som dagseng og benkeseksjoner i en åpen, arealeffektiv planløsning.
Les mer om prosjektet på sangefjellvegen123.no.
Friluftsliv og nærområde
Sommertid byr området på mange flotte turstier, fiske i nærliggende vann og gode muligheter for både dagsturer og toppturar i variert terreng. Kort vei til lokale serveringssteder gjør det enkelt å ta en velfortjent pause.
Prøvebo og vurder
Prøvebohytta er klargjort for at du kan flytte rett inn og kjenne på romfølelsen, funksjonaliteten og kvalitetene etter den varsomme rehabiliteringen. Målet er at hytta skal være lett å kjenne igjen: samme sjel og tidløse uttrykk, men med bedre komfort og driftssikre tekniske løsninger.
Dette er et ypperlig alternativ for deg som ønsker å erfare hvordan det er å bo i en oppgradert, men gjenkjennelig Ålhytte før du planlegger ditt eget rehabiliteringsprosjekt.
Ønsker du å prøvebo Sangefjellvegen 123? Fyll ut skjemaet under, så kontakter vi deg.