
Prøvebo vår Ålhytte på Sangefjell, Ål
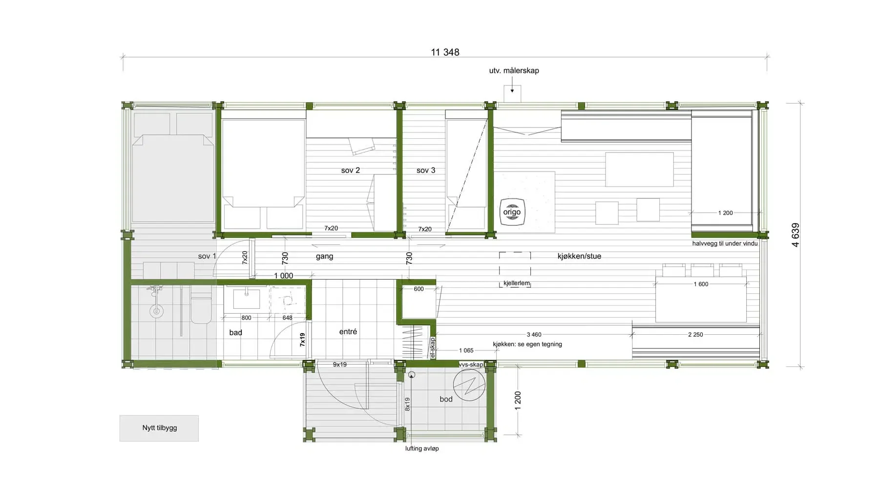
Inneholder 2 soverom med totalt 4 sengeplassar. For øvrig bad med WC og dusjnisje, ope kjøkken med spiseplass, stove med sofakrok, karnapp og peisomn. Prøvebohytta har utebod for oppbevaring av ski, turutstyr og ved.
Prøvebohytta ligg på Sangefjell, om lag 13 km frå næraste tettstad.
Dette er eit «ta vare på»-prosjekt Hytta er rehabilitert med mål om å ta vare på det vesentlege i ei eldre Ålhytte. Vi har tilbakeført og forsterka opprinneleg Ålhyttedesign, samtidig som vi retta opp tekniske manglar og dårlege romløysingar. Tilnærminga har vore «bygge smart, ikkje stort» — effektive, gode løysingar utan unødig påbygg eller auka fotavtrykk.
Om rehabiliteringa I rehabiliteringa er uoriginale tilbyg teke bort og hytta refundamentert, etterisolert og fått ny ytterkledning. Endevegg og inngangsparti er tilpassa for betre planløysing utan å endre hyttas karakter. Hytta har no innlagt vatn og avløp med eige reinseanlegg, nye vindauge og oppgradert elektrisk anlegg. Omn og pipeløp er skifta til moderne, reintbrennande løysingar. Interiøret byggjer på Ålhytte-tradisjonen med element som dagseng og benkeseksjonar i ei open, arealeffektiv planløysing. Les mer om prosjektet på sangefjellvegen123.no.
Friluftsliv og nærområde Sommarstid byr området på mange flotte turstiar, fiske i nærliggjande vatn og gode moglegheiter for dagsturar og toppturar i variert terreng. Kort veg til lokale serveringsstader gjer det lett å ta ein velfortent pause.
Prøvebu og vurder Prøvebohytta er gjort klar for at du kan bu inn — kjenne på romfølelsen, funksjonaliteten og kvalitetane etter ei varsam rehabilitering. Målet er at hytta skal vere lett å kjenne att: same sjel og tidlause uttrykk, med betre komfort og meir driftssikre tekniske løysingar. Dette er eit godt alternativ om du vil prøve korleis det er å bu i ei oppgradert, men gjenkjenneleg Ålhytte før du planlegg eige rehabiliteringsprosjekt.
Ønsker du å prøvebo Sangefjellvegen 123, fyll ut skjemaet under og du vil bli kontakta.